No items found.

Karratha Senior High School

Ngarluma
Date
2023
Collaborators
No items found.
Selected Awards
There is no awards for the this project

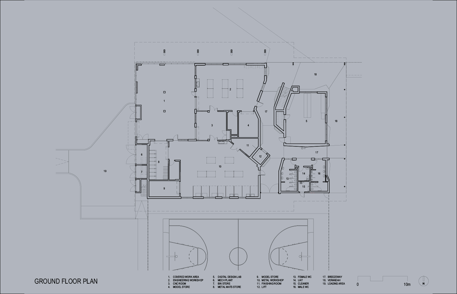
Karratha Senior High School is in a region D, cyclonic area, a hot semi-arid climate subject to intense rainfall and wind during regular cyclones. It sits at the base of ancient hills on a flood plain that discharges into Nickol Bay and connects to the Yaburara Heritage Trail including culturally significant aboriginal sites. The Technical Learning facilities is a unique collection of spaces collected under one continuous roof focusing distant views to culturally important sites, the horizon and spaces unseen from the ground. Spaces are interactive, reflective, contemplative, social and educational, embracing the individual and the community. Spaces are designed to inspire rather than simply teach and to reference familiar places of destination, creating comfort and meaning. Applied colour, pattern and symbols progressively unfold to provide meaning and enrich experience. Ground level walls extrude to provide places to gather, recreate and rest in shade and naturally ventilated places. The connection of recreation to technical learning and the provision of multi-use exterior spaces extends the brief beyond expectations. This building creates learning environments that enable the individual student to reflect and to situate themselves in the environment and landscape, to view the broader horizon and to be part of a community.